26721 EMDEN
Sanierungsbedürftiges Drei-Parteien-Haus mit Entwicklungspotenzial in zentraler Lage
- ca. 227 m² Superficie habitable
- ca. 166 m² Superficie del terreno
- 9 Habitaciones
- 159.900 EUR Precio de compra
Visión general
Destacados
Detalles
Número de propiedad
25335125
Tipo de vivienda
Casa plurifamiliar
Modernización / Rehabilitación
2021
Baños
6
Año de construcción
1898
Comisión
Käuferprovision beträgt 7,14 % (inkl. MwSt.) des beurkundeten Kaufpreises
Información energética
Certificado energético
Legally not required
Fuente de energía
Gas
Tipo de calefacción
Sistema de calefacción de una sola planta
Descripción
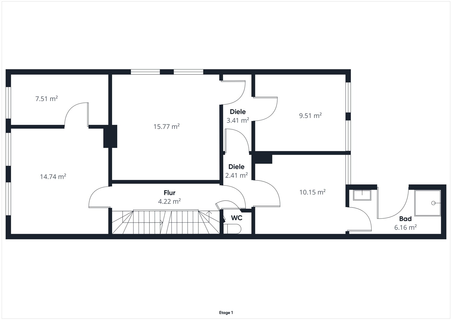
Dieses Mehrfamilienhaus mit drei Wohneinheiten befindet sich auf einem ca. 166 m² großen Grundstück. Das ursprüngliche Baujahr des Gebäudes ist auf ca. 1898 datiert, mit einem Dachgeschossaufbau aus den 1930er Jahren. Im Anbau sind die jeweils zur Wohneinheit zugehörigen Badezimmer untergebracht. Die Immobilie steht unter Fassadendenkmalschutz, somit können sich steuerliche Vorteile ergeben. Fenster im Erdgeschoss, 1. Stock und 2. Stock wurden größtenteils ca. 2021 durch zweifach isolierverglaste Kunststoff-Fenster ersetzt. Auch die Eingangstür wurde im selben Jahr erneuert. Die Wohnflächen sind wie folgt aufgeteilt: EG: ca. 76 m², 3 Zimmer, Flur/Diele, Küche, Bad 1. OG: ca. 75 m², 3 Zimmer, Abstellraum, Flur/Diele, Küche, Bad 2. OG: ca. 76 m², 3 Zimmer, Abstellraum, Flur/Diele, Küche, Bad Gesamtfläche: ca. 227 m² Jede Wohneinheit verfügt über eine eigene Gasbrennwerttherme, die jedoch erneuert werden müssen. Der Keller befindet sich in trockenem Zustand, genauso wie der Dachboden, der Ausbaureserve bietet. Die Elektrik wurde erneuert. Es stehen jeweils ein Balkon im 1. und 2. Stock zur Verfügung. Ebenfalls gibt es einen überdachten Gemeinschaftsbereich im Garten. Die Immobilie wurde größtenteils bereits für die weitere Sanierung vorbereitet - es wurden teilweise die Böden entfernt und die Wände weiß gestrichen.
Ubicaciones
Descripción
Emden ist die größte Stadt Ostfrieslands und ein bedeutender Wirtschaftsstandort mit einer starken Infrastruktur und hervorragender Verkehrsanbindung. Die Stadt profitiert von ihrer strategischen Lage an der Ems und der Nähe zur Nordsee, was sie zu einem wichtigen Zentrum für Handel, Industrie und Dienstleistungen macht. Die Wirtschaft Emdens ist vielfältig aufgestellt. Besonders hervorzuheben ist die Automobilindustrie mit dem Volkswagen-Werk, das zu den größten Arbeitgebern der Region gehört. Darüber hinaus ist Emden als Hafenstadt von zentraler Bedeutung für den Warenumschlag und die Logistikbranche. Weitere starke Wirtschaftssektoren sind der Maschinenbau, die erneuerbaren Energien sowie der Einzelhandel. Durch die Ansiedlung namhafter Handelsunternehmen bietet Emden eine hohe Kaufkraft und eine stabile wirtschaftliche Basis für gewerbliche Investitionen. Die gute Erreichbarkeit über die Autobahn A31, Bundesstraßen und den Emder Hafen gewährleistet eine hervorragende Anbindung an nationale und internationale Märkte. Zudem verfügt die Stadt über eine direkte Bahnanbindung sowie einen Regionalflughafen. Mit einer gut ausgebauten Infrastruktur, einer wachsenden Wirtschaftsstruktur und einer starken Nachfrage nach Gewerbeflächen ist Emden ein attraktiver Standort für Unternehmer und Investoren.
Plano de la planta



26721 EMDEN
Sanierungsbedürftiges Drei-Parteien-Haus mit Entwicklungspotenzial in zentraler Lage
ca. 227 m² • 9 Habitaciones • 159.900 EUR
Proveedor
- Nils Onken
- Tienda Aurich / Frisia Oriental
- Fockenbollwerkstraße 1
- 26603 Aurich